Gemeinsam leben an der Wassermühle
Wir bauen ein Haus, in dem Werte wie Zusammenhalt, Wachstum und Lebensfreude im Vordergrund stehen. Ein Ort, an dem wir miteinander leben, lernen und Freude teilen können.
Aktuelles
Unsere nächste Infoveranstaltung findet am Sonntag, dem 12.04.2026 um 11 Uhr im Atrium bei LebensArt (Mühlenstrasse 209a), statt. Bei Interesse meldet euch bitte bei Jenny (oder per leben.an.der.wassermuehle@gmail.com) an.
Wir freuen uns auf alle Interessierten, insbesondere auf Familien mit Kindern.
Über uns
Der Verein "Leben an der Wassermühle e.V" i.Gr. setzt sich zum Ziel, selbstbestimmtes Wohnen in Gemeinschaft zu fördern. Der Verein verfolgt sein Ziel insbesondere durch Gründung eines Wohnprojektes in Rotenburg. Durch gemeinsame Verantwortung für Wohn- und Lebensräume soll das Entstehen gemeinschaftlicher, generationsübergreifender, kreativer und multikultureller Lebensformen unterstützt werden.
Der Verein "Leben an der Wassermühle e.V" i.Gr. leistet einen Beitrag zur Förderung des sozialen, kulturellen, ökologischen und politischen Lebens. Der Verein unterstützt eine innovative Quartiersentwicklung in Rotenburg

Projekt Zeitplan
Ausführungsplanung / Werkplanung
16.08.2024 - 01.12.2025
Baubeginn
01.10.2025
Fertigstellung
01.02.2027
15
Erstellte Wohnungen
1600
Wohnfläche (m²)
3200+
Freiraumfläche (m²)
Genehmigungsplanung
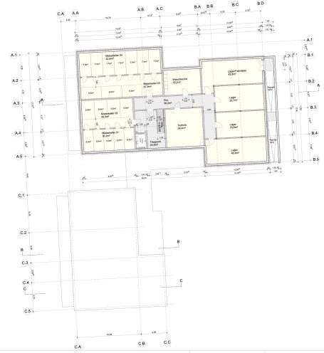
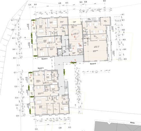
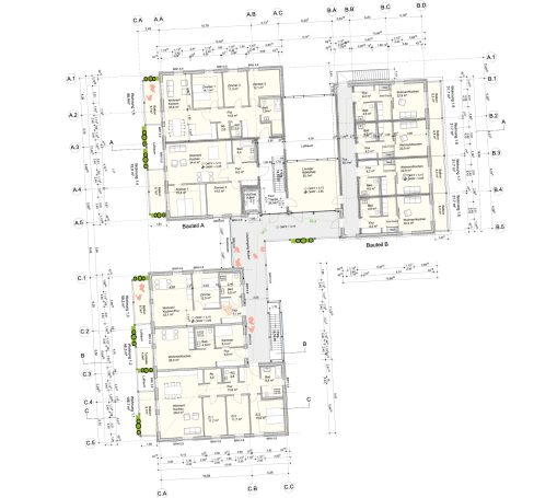
Lageplan
Grundrisse
Klick auf das Bild öffnet das PDF-Dokument mit den Grundrissen aller Wohnungen

Nachhaltiges Leben
Wir integrieren nachhaltige Praktiken und fördern ein umweltbewusstes Leben für alle Bewohner.
Naturverbundenheit
Durch unsere Lage am Fluss können wir die Natur hautnah erleben und schützen.

Kontakt aufnehmen
Telefon:
0176 70891438 (Jenny Dück) - Vereinsfragen
0172 5656223 (Astrid Schwarze-Bruns) - GbR und Baufragen
E-Mail:
leben.an.der.wassermuehle@gmail.com - Vereinsfragen
astrid.schwarze-bruns@hotmail.de - GbR und Baufragen
Adresse: Mühlenstr. 16, Rotenburg (Wümme), 27356, Niedersachsen, Deutschland









